Skip To Content

84 Shadowmoss Parkway

Charleston, SC 29414
  • $542,000
  • STATUS: Closed
  • ON SITE: 390 Days
  • ID#: 24029021
Sold - 04/29/2025
$542,000
SOLD - 04/29/2025
  • 4
    BEDS
  • 0.26
    ACRES
  • 2
    BATHS
  • 0
    1/2 BATHS
  • 2,030
    SQFT
  • $0
    $/SQFT
Neighborhood:
Type:
Single-Family Home
Built:
1989
County:

School Information

Elementary School:
Middle School:
High School:

Description

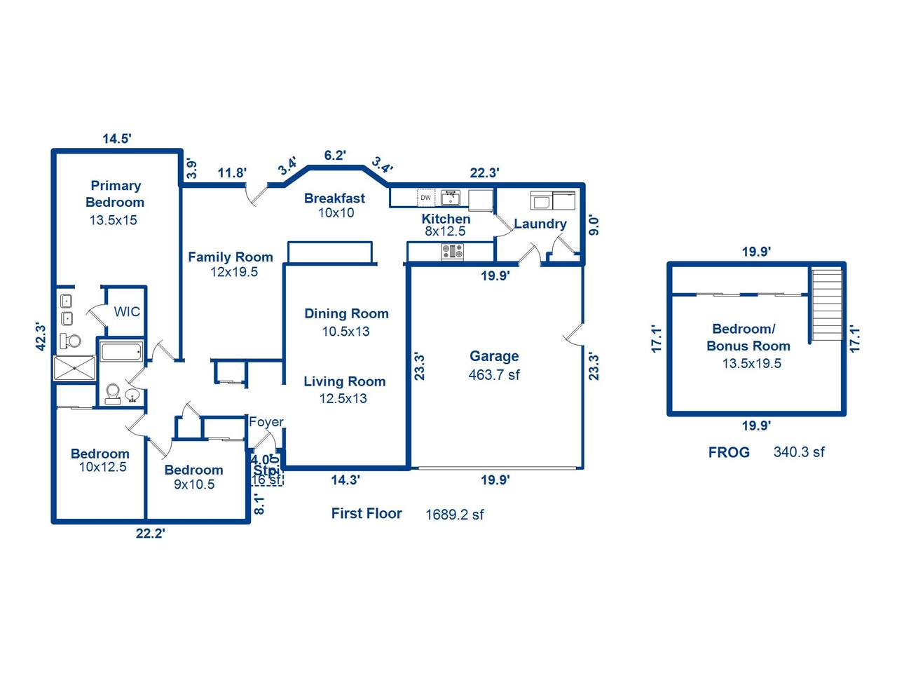
Move In Ready! This Renovated one-level home w/FROG in sought after Shadowmoss neighborhood is ready for YOU! NO need to pick up a hammer...this home's EXTENSIVE RENOVATION was just completed! Looks little, but lives LARGE with a level/wooded backyard and 2030 square feet comprised of the following: 3 bedrooms, 4th bedroom/FROG, Kitchen, Breakfast Nook, Living room/Dining room combo, separate Den/Family room, pantry/laundry room, two full bathrooms and ample storage in multiple closets and attic. NO HOA and X Flood Zone (no ins. required)Character and Charm abound as you enter the welcoming foyer w/new floating LVP flooring throught the home. Pass thru the expansive Living & Dining rooms to enter your new Entertainer's Vaulted Kitchen with additional Coffee/Wine bar that leadsto the Vaulted Den/Family room. Original Wood beams extend from the Den thru the Breakfast nook w/bay window, and into the kitchen! The new White Kitchen enjoys gorgeous Quartz countertops including the additional coffee/wine bar. All New SS appliances including Gas Stove, Fridge, Dishwasher & Microwave, sink & faucet. The updated primary bedroom and gutted ensuite now boast a fresh Barndoor entry, highend dual-sink vanity, walk-in shower w/Designer (floor to ceiling) Tile, and New toilet, lighting & mirrors. Walk-in Closet has newly painted custom shelving. Behind the scenes Updates were completed in the hidden, yet vital parts of this home. Old plumbing was replaced with PEX pipes throughout. Crawlspace was inspected and cleared. Primary bath was replumbed into a double sink vanity. The roof is only 8 years old. A New HVAC AND GAS Water Heater were installed in 2023. Entire Interior & Trim of the home was painted with neutral, Designer colors. Vanities/sinks/faucets were replaced. New Lighting/Fans and Floating LVP Flooring were installed. Stairs to expansive FROG have been stained & painted. Home also boasts an Oversized 2-Car Garage for your weekend projects, lawn care and car care. The level, private backyard has been cleared for your future deck/patio. New exterior stairs have been installed. Yard is surrounded by Mature landscaping with multiple shade trees and bushes. Located in West Ashley, this home has easy access to great restaurants and shopping, downtown Charleston, the airport and several rivers and beaches. This location can't be beat!

Monthly Payment Calculator



Charleston Trident Association of REALTORS® logo Real estate listing marked with the CTMLS logo or an abbreviated logo are provided courtesy of the Charleston Trident MLS Broker Reciprocity Database. IDX information is provided exclusively for consumers' personal, non-commercial use and may not be used for any purpose other than to identify prospective properties consumers may be interested in purchasing. Information is deemed reliable but is not guaranteed accurate by the MLS or The Cassina Group, LLC. Data last updated: 2025-12-14T14:31:15.053.
www.thecassinagroup.com/homes/157991841
Print Image

84 Shadowmoss Parkway Charleston, SC 29414

  • Price: $550,000
  • Status: Closed
  • On Site: 390 Days
  • Updated: 53 min ago
  • ID#: 24029021
4
Beds
2
Baths
0
½ Baths
0.26
Acres
2,030
SQFT
$0
$/SQFT
1989
Built
Neighborhood:
Shadowmoss
County:
Charleston
Area:
West Ashley - Outside Mark Clark
Elementary School:
Drayton Hall
Middle School:
C E Williams
High School:
West Ashley
Property Description
Move In Ready! This Renovated one-level home w/FROG in sought after Shadowmoss neighborhood is ready for YOU! NO need to pick up a hammer...this home's EXTENSIVE RENOVATION was just completed! Looks little, but lives LARGE with a level/wooded backyard and 2030 square feet comprised of the following: 3 bedrooms, 4th bedroom/FROG, Kitchen, Breakfast Nook, Living room/Dining room combo, separate Den/Family room, pantry/laundry room, two full bathrooms and ample storage in multiple closets and attic. NO HOA and X Flood Zone (no ins. required)Character and Charm abound as you enter the welcoming foyer w/new floating LVP flooring throught the home. Pass thru the expansive Living & Dining rooms to enter your new Entertainer's Vaulted Kitchen with additional Coffee/Wine bar that leadsto the Vaulted Den/Family room. Original Wood beams extend from the Den thru the Breakfast nook w/bay window, and into the kitchen! The new White Kitchen enjoys gorgeous Quartz countertops including the additional coffee/wine bar. All New SS appliances including Gas Stove, Fridge, Dishwasher & Microwave, sink & faucet. The updated primary bedroom and gutted ensuite now boast a fresh Barndoor entry, highend dual-sink vanity, walk-in shower w/Designer (floor to ceiling) Tile, and New toilet, lighting & mirrors. Walk-in Closet has newly painted custom shelving. Behind the scenes Updates were completed in the hidden, yet vital parts of this home. Old plumbing was replaced with PEX pipes throughout. Crawlspace was inspected and cleared. Primary bath was replumbed into a double sink vanity. The roof is only 8 years old. A New HVAC AND GAS Water Heater were installed in 2023. Entire Interior & Trim of the home was painted with neutral, Designer colors. Vanities/sinks/faucets were replaced. New Lighting/Fans and Floating LVP Flooring were installed. Stairs to expansive FROG have been stained & painted. Home also boasts an Oversized 2-Car Garage for your weekend projects, lawn care and car care. The level, private backyard has been cleared for your future deck/patio. New exterior stairs have been installed. Yard is surrounded by Mature landscaping with multiple shade trees and bushes. Located in West Ashley, this home has easy access to great restaurants and shopping, downtown Charleston, the airport and several rivers and beaches. This location can't be beat!
Exterior Features

Architectural Style Ranch Attached Garage YN Yes Carport Spaces 0 Carport YN No Construction Materials Vinyl Siding Covered Spaces 2 Entry Location Ground Level Exterior Features Rain GuttersStoop Fencing Partial Foundation Details Crawl Space Garage YN Yes Lot Features 0 - .5 AcreLevelWooded Other Structures No Parking Features 2 Car GarageAttachedGarage Door Opener Parking Total 2 Patio And Porch Features Porch

Interior Features

Cooling YN No Fireplace YN No Flooring Luxury Vinyl Heating BaseboardCentralForced Air Heating YN Yes Interior Features Beamed CeilingsCeiling - BlownCeiling - Cathedral/VaultedWalk-In Closet(s)Ceiling Fan(s)Eat-in KitchenFamilyFormal LivingEntrance FoyerFrog AttachedLiving/Dining ComboPantrySeparate Dining Laundry Features Gas Dryer HookupWasher HookupLaundry Room Levels OneOne and One Half Master Bedroom Features Ceiling Fan(s)Walk-In Closet(s) Master Bedroom Level Lower

Property Features

Accessibility Features Handicapped Equipped Community Features Club Membership AvailableGolf CourseGolf Membership AvailableTrash Listing Terms Any New Construction YN No Property Attached YN No Property Sub Type Single Family Detached Sewer Public Sewer Utilities Charleston Water ServiceDominion Energy Water Source Public

Charleston Trident Association of REALTORS® logo Listing courtesy of Carolina One Real Estate: 843-779-8660.


Charleston Trident Association of REALTORS® logo Real estate listing marked with the CTMLS logo or an abbreviated logo are provided courtesy of the Charleston Trident MLS Broker Reciprocity Database. IDX information is provided exclusively for consumers' personal, non-commercial use and may not be used for any purpose other than to identify prospective properties consumers may be interested in purchasing. Information is deemed reliable but is not guaranteed accurate by the MLS or The Cassina Group, LLC. Data last updated: 2025-12-14T14:31:15.053.
 
https://bt-photos.global.ssl.fastly.net/charleston/1280_boomver_1_24029021-2.jpg https://bt-photos.global.ssl.fastly.net/charleston/1280_boomver_1_24029021-2.jpg https://bt-photos.global.ssl.fastly.net/charleston/1280_boomver_1_24029021-2.jpg
Logo
The Cassina Group, LLC
309 Coleman Boulevard
Mount Pleasant SC, 29464